Mieszkanie Generałów, ul. Bukowskiego 9
Bukowskiego 9, Generałów, Olsztyn, warmińsko-mazurskie
- 667 952 zł
- 61,28 m²
- 10 900 zł/m²
Biuro sprzedaży
Skontaktuj się
Mieszkanie Generałów, ul. Bukowskiego 9
Bukowskiego 9, Generałów, Olsztyn, warmińsko-mazurskie
zaktualizowane:
28 kwietnia 2026
Mieszkanie Generałów, ul. Bukowskiego 9
Inwestycja: Bukowa Przystań
Zaktualizowane: 28 kwietnia 2026
667 952 zł 61,28 m² 10 900 zł/m²
IV kwartał 2027
3/3
4
garaż
deweloperski
Zobacz na mapie
Termin realizacji:
IV kwartał 2027Piętro:
3/3Liczba pokoi:
4Miejsce postojowe:
garażStan mieszkania:
deweloperskiSzczegóły ogłoszenia
- Typ oferty: mieszkanie na sprzedaż
- Cena: 667 952 zł (10 900 zł/m²)
- Termin realizacji: IV kwartał 2027
- Status oferty: dostępne
- Rynek: pierwotny (oferta dewelopera)
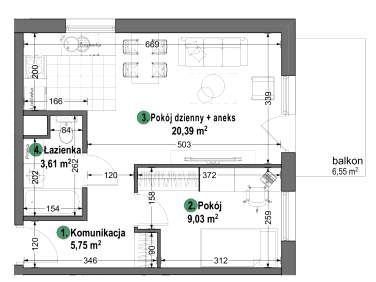
- Charakterystyka mieszkania: 61,28 m², 4 pokoje, 1 łazienka; stan: deweloperski
- Budynek: blok mieszkalny
- winda
- Rozkład mieszkania: piętro 3/3, jednopoziomowe
- Powierzchnia dodatkowa: balkon (6,6 m²), komórka lokatorska (2,9 m²)
- Kuchnia: aneks kuchenny
- Miejsce/a postojowe: w garażu wielostanowiskowym, przynależne do mieszkania - bez obowiązku zakupu (30 miejsc); garaż w bryle budynku
w garażu indywidualnym (12 miejsc); garaż w bryle budynku
naziemne
- Źródło: oferta dewelopera: MAS - BUD Stawarczyk, zaktualizowane: 28.04.2026
- sygnatura ogłoszenia: B1-53
Lokalizacja
- Inwestycja: Bukowa Przystań
- Adres: Bukowskiego 9, Generałów, Olsztyn, warmińsko-mazurskie
- Na terenie inwestycji: plac zabaw, wózkownia, tereny zielone
- W pobliżu żłobek, przedszkole, szkoła podstawowa, przychodnia, przystanek autobusowy, przystanek tramwajowy, centrum handlowe, park, las, jezioro
Opis nieruchomości
Zapraszamy do zapoznania się z ofertą 4-pokojowego mieszkania, składającego się z pokoju dziennego z aneksem kuchennym, trzech sypialni, łazienki i balkonu. (...)

Inwestycja realizowana przez:
MAS - BUD Stawarczyk
Biuro sprzedaży
Bukowskiego 9
Olsztyn 10-699
| MieszkanieB1-52 | 50,21 m² | 11 200 zł/m² | 2/3 | 3 | 562 352 zł |
| Mieszkanie | ||||
|
||||
| B1-52 |
| MieszkanieB1-1 | 38,78 m² | 11 250 zł/m² | parter/3 | 2 | 436 275 zł |
| Mieszkanie | ||||
|
||||
| B1-1 |
| MieszkanieB1-2 | 57,93 m² | 10 850 zł/m² | parter/3 | 3 | 628 541 zł |
| Mieszkanie | ||||
|
||||
| B1-2 |
| MieszkanieB1-3 | 31,79 m² | 11 400 zł/m² | parter/3 | 2 | 362 406 zł |
| Mieszkanie | ||||
|
||||
| B1-3 |
| MieszkanieB1-8 | 61,28 m² | 10 800 zł/m² | 1/3 | 4 | 661 824 zł |
| Mieszkanie | ||||
|
||||
| B1-8 |
| MieszkanieB1-9 | 38,78 m² | 11 450 zł/m² | 2/3 | 2 | 444 031 zł |
| Mieszkanie | ||||
|
||||
| B1-9 |
| MieszkanieB1-12 | 61,28 m² | 10 850 zł/m² | 2/3 | 4 | 664 888 zł |
| Mieszkanie | ||||
|
||||
| B1-12 |
| MieszkanieB1-14 | 57,93 m² | 11 000 zł/m² | 3/3 | 3 | 637 230 zł |
| Mieszkanie | ||||
|
||||
| B1-14 |
| MieszkanieB1-16 | 61,28 m² | 10 900 zł/m² | 3/3 | 4 | 667 952 zł |
| Mieszkanie | ||||
|
||||
| B1-16 |
| MieszkanieB1-17 | 53,37 m² | 10 850 zł/m² | parter/3 | 3 | 579 065 zł |
| Mieszkanie | ||||
|
||||
| B1-17 |
Biuro sprzedaży
721 800...
721 800 400










